武汉大学口腔医院实验室装修工程项目
第一部分:基本情况
![]() | 武汉大学口腔医院作为一所集医疗、教学与科研于一体的三级甲等专科医院,其前身湖北医科大学口腔医院创立于1960年,是新中国成立后首批自主筹建的口腔专科机构,承载着深厚的医学传承与创新使命。为支撑其前沿科研与临床研究需求,本次Deiiang™承接C号楼一、二层实验室整体装修改造工程,旨在构建功能集成、环境可控、流程规范的现代化口腔医学研究平台。 通过系统性设计与一体化施工,Deiiang™致力于为武汉大学口腔医院打造一个技术先进、管理便捷、符合生物安全标准的专业化实验环境,助力其口腔医学研究能力的持续提升与学科发展。 |
第二部分:项目基本需求参数
- 总建筑面积:1985.15平方米

第三部分:项目设计图

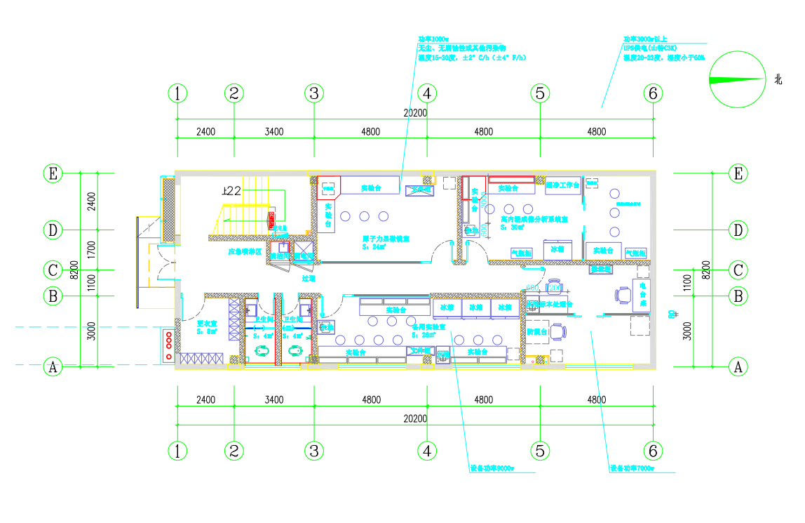
平面布局图
Deiiang™的设计师Jason.peng精心规划了布局,确保流程高效顺畅。

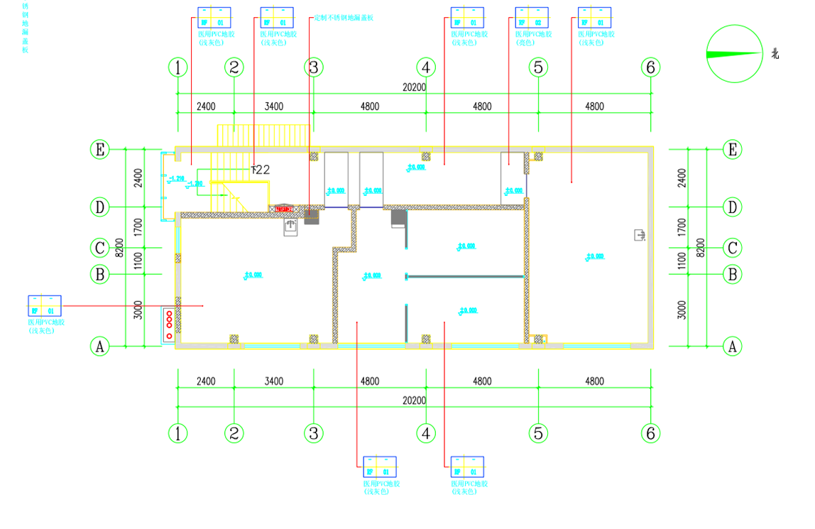
平面布局图
Deiiang™的设计师Jason.peng精心规划了布局,确保流程高效顺畅。

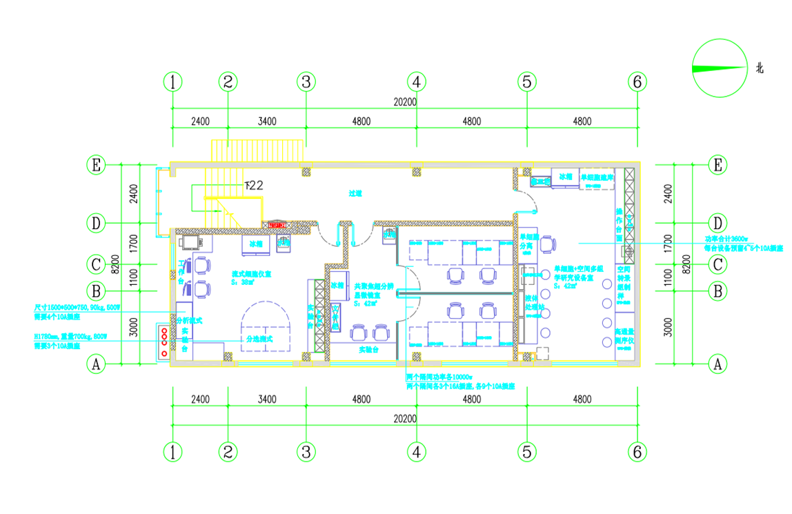
平面布局图
Deiiang™的设计师Jason.peng精心规划了布局,确保流程高效顺畅。

平面布局图
Deiiang™的设计师Jason.peng精心规划了布局,确保流程高效顺畅。
第四部分:施工现场照片



第五部分:完工视频
武汉大学口腔医院实验室装修工程项目完工展示视频
Deiiang™ 洁净工程 | 产品设计师:Jason.peng
© 2023 武汉大学口腔医院实验室装修工程项目
MENU