当阳长坂坡医院检验科实验室装修项目
第一部分:基本情况
![]() | 当阳长坂坡医院前身为中国人民解放军769医院,拥有深厚的医疗传承,现为当阳市核心的非营利性综合医疗机构及规模领先的二级医院。为持续提升临床检验能力与医疗服务品质,本次Deiiang™承接其检验科实验室整体装修工程,旨在打造一个流程规范、安全高效、符合生物安全标准的现代化临床检测平台。 |
第二部分:项目基本需求参数
- 建筑面积:5200平方米
- 洁净等级:ISO 7级(10000级)
- 温度:22±2℃
- 湿度:50±5% RH
- 防腐等级:IP65

第三部分:项目设计图

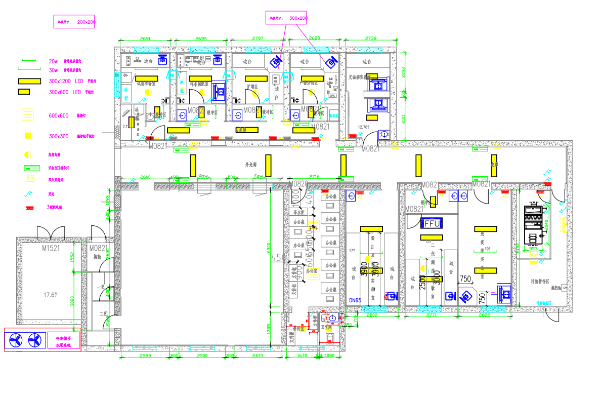
平面布局图(一)
Deiiang™的设计师Jason.peng精心规划了车间布局,确保生产流程高效顺畅。按照食品生产规范,将车间划分为原料区、加工区、包装区和成品区,各区域之间设有缓冲区,防止交叉污染。

平面布局图(二)
地面采用Deiiang™专利的环氧自流平技术,厚度达3mm,具有优异的耐磨、耐腐蚀性能,确保地面平整无缝隙,便于清洁消毒。
第四部分:施工现场照片



第五部分:完工视频
当阳长坂坡医院检验科实验室装修项目完工展示视频
Deiiang™ 洁净工程 | 产品设计师:Jason.peng
© 2023 当阳长坂坡医院检验科实验室装修项目
MENU